MY EXISTING FLOOR PLANS
LUXURY HOMES
LUXURY
Existing Floor Plans
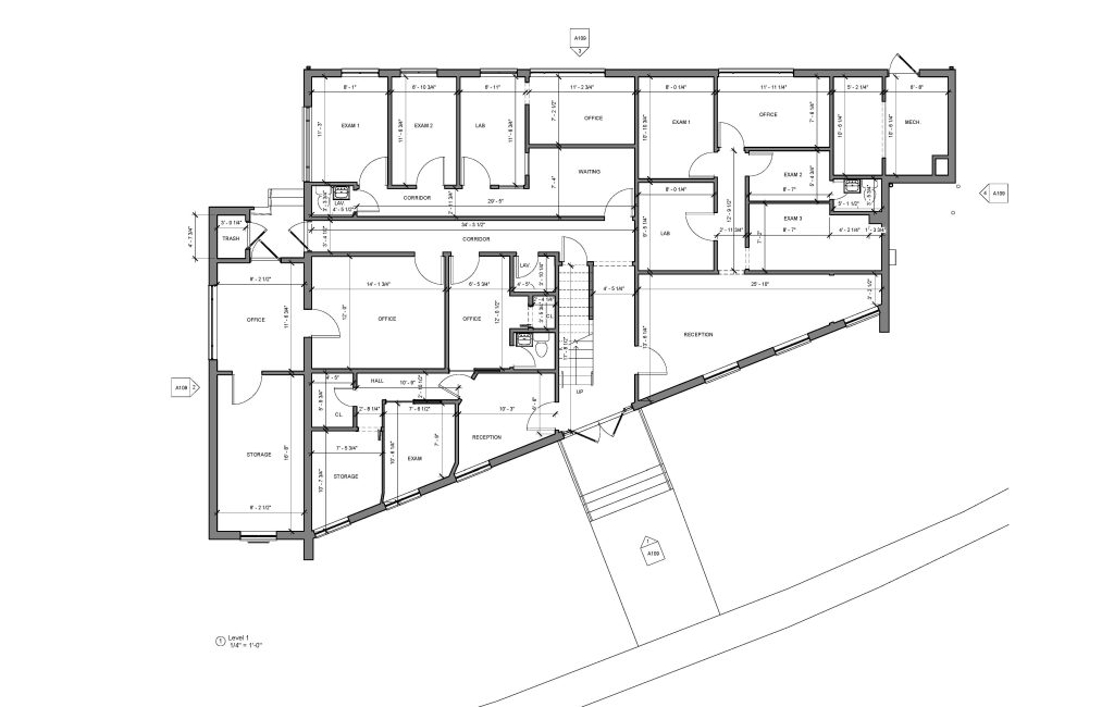
Existing floor plans and existing elevation plans play a key role in the design, construction and new improvements architects need. The Existing Floor Plan is the base map your Architect, Designer, Bulder and Homeowner will need to start the project.
We create detailed and visually engaging floor plans for both residential and commercial properties, as well as precise dimensioned layout of existing buildings and homes for design and new improvement purposes.
Every Existing Floor Plan is measured using our 3D Laser Scanner to create precise measurements of the existing floor plan, wall heights, door and window openings.
Choose from a variety of deliverables which include PDF, CAD – DWG or BIM Files.
Collaborate with us to create a tailored layout of existing conditions for your needs.
About My Existing Floor Plans
Interior 3D Scanning: Revolutionizing Modern Design and Architecture
In the ever-evolving fields of design and architecture, staying ahead of technological advancements is crucial. One such groundbreaking innovation is Interior 3D Scanning, a process that has transformed how professionals approach space measurement and visualization. By capturing precise dimensions and creating detailed digital models of interior spaces, this technology offers unparalleled accuracy and efficiency.
About My Existing Floor Plans
We are capable of delivering your projects when you need them all the while maintaining the highest degree of accuracy in our work.
Latest BIM Technology
We utilise the latest in CAD software and Building Information Modeling (BIM) platforms to create detailed 3D representations of our projects.

Over 25 Years Experience
We’ve been involved in the building industry for over 25 years. This experience will ensure your project is delivered at the highest level of quality.

Innovation In Design
We pride ourselves on being leaders in current trends while ensuring functional spaces and comfort in every building we design.

Competitive Prices
We will provide you with a competitively-priced quotation for your project. With us you know you are getting the best rates around.

Locally Owned & Operated
We are a family owned and operated business who employ locally. We perform 100% of our work and we support the local community and small business here.

Fast Turn-Around
We are capable of delivering your projects when you need them all the while maintaining the highest degree of accuracy in our work.
















